Cultura, Cine e Identidad Almeriense

Inicio - Cultura y Cine - Espacios Escénicos - Teatro Municipal de Chercos

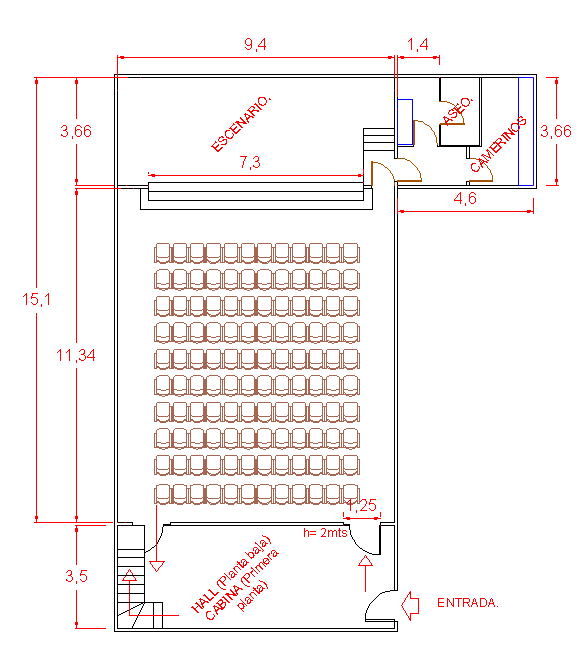
Capacidad (aprox): 94

Lugar: Chercos

Comarca: Almanzora

Latitud: No existe dato

Longitud: No existe dato

Galería de imágenes

Galería de anexos

AnexosTamaño
ficha tecnica Chercos.pdf87 KB

Cámara escénica

Telón de boca: Si

Nº de calles: 2

Ancho (m): 9

Fondo (m): 4

Boca (m): 7

Alto boca (m): 3


Iluminación espectacular

Potencia toma a compañias (en watios): 16000

Nº Varas Electrificadas: 8

Dimmers: No existe dato

Mesa de control: Si


Sonido espectacular

Potencia de la etapa (por canal): 500

Nº de altavoces: 2

Mesa de control (nº de canales): 16

Nº de micrófonos inalámbricos: 2


Audiovisual

Proyector: Si

Pantalla de proyección: Si